姫路ザ・レジデンス
物件番号/1056247476
- 賃 料
- 280,000円
- 共益費
- 0円
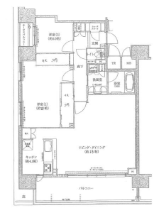
- 間取り
- 2LDK
- 専有面積
- 89.22㎡
- 築年月
- 平成30年12月 (築8年)
- 敷 金
- 1ヶ月
- 礼 金
- 2ヶ月
- 保証金
- -
- 解約引
- -
- 交 通
- 山陽電鉄線 山陽姫路駅 徒歩4分
JR山陽本線 姫路駅 徒歩4分
JR播但線 京口駅 徒歩21分 - 所在地
- 姫路市東駅前町
おすすめポイント
築浅分譲賃貸!最新設備充実!オートロックで安心!
設備・周辺情報など
- 路線/駅
- 山陽電鉄線 山陽姫路駅 徒歩4分
JR山陽本線 姫路駅 徒歩4分
JR播但線 京口駅 徒歩21分 - 所在地
- 姫路市東駅前町
- 内 訳
- LDK23帖、洋室5帖、洋室10帖
- 種 別
- マンション
- 階数/階建
- 11階/15階建
- 向 き
- 北
- 構 造
- RC
- 現 況
- 空室
- 入 居
- 即時
- 契約期間
- 2年
- 取引態様
- 一般媒介
- 駐車場
- 空無
- 設備/条件
- 上水道
- 下水道
- 都市ガス
- 電話
- 給湯
- フローリング
- エレベーター
- オートロック
- 洗髪洗面化粧台
- CATV
- システムキッチン
- バルコニー
- ガスキッチン
- シャワー
- 室内洗濯置場
- バス・トイレ別室
- 温水洗浄便座
- TVモニターホン
- 浴室乾燥
- 収納スペース
- インターネット対応
- 洗面所独立
- カウンターキッチン
- W・INクローゼット
- 床暖房
- 24時間セキュリティシステム
- 駐輪場
- 角部屋
- コンロ2口以上
- バイク置場
- 分譲タイプ
- 光ファイバー
- 防犯カメラ
- 日当たり良好
- 閑静な住宅街
- 食器洗い乾燥機
- 2人入居可
- 保証人不要
- 高齢者相談
- 保 険
- 加入要 11,000円/2年
- 保証会社
- 利用必須 初回保証料 家賃総額の40% 月額保証料800円/月
- 金銭備考
- 初期費用の分割可能!クレジットカード決済可(分割最大24回払いOK) 退去時クリーニング費110,000円
- 周辺施設
- 白鷺小学校/1295m (徒歩17分)
- 白鷺中学校/971m (徒歩13分)
- コンビニ/50m (徒歩1分)
- 大学など
- -
表示の情報と現況に差異がある場合は現況優先となります。
お問い合わせ·内覧予約は
同じ建物の他の空室
- 階
- 家賃/
共益費 - 敷金/
礼金 - 間取り/
専有面積

9階- 23.5万円
- - 1ヶ月
2ヶ月 - 3LDK
82.46m²

12階- 17.0万円
0.8万円 - 1ヶ月
2ヶ月 - 1SLDK
58.74m²








