ロストフ88
物件番号/1056246456
- 賃 料
- 55,000円
- 共益費
- 2,000円
- 間取り
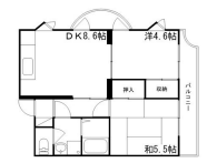
- 2SLDK
- 専有面積
- 61.23㎡
- 築年月
- 昭和63年8月 (築38年)
- 敷 金
- 1ヶ月
- 礼 金
- 1ヶ月
- 保証金
- -
- 解約引
- -
- 交 通
- JR姫新線 本竜野駅 徒歩34分
- 所在地
- たつの市揖西町小神
おすすめポイント
RC造で防音性◎広い間取りでファミリー向け!スーパー近くで買い物便利!
設備・周辺情報など
- 路線/駅
- JR姫新線 本竜野駅 徒歩34分
- 所在地
- たつの市揖西町小神
- 内 訳
- DK8.6帖、洋室4.6帖、和室5.5帖
- 種 別
- マンション
- 階数/階建
- 1階/3階建
- 向 き
- 南
- 構 造
- RC
- 現 況
- 空室
- 入 居
- 即時
- 契約期間
- 2年
- 取引態様
- 一般媒介
- 駐車場
- 空有
- 設備/条件
- 上水道
- 下水道
- プロパンガス
- 電話
- 冷房
- 暖房
- 給湯
- フローリング
- 追焚機能
- 洗髪洗面化粧台
- バルコニー
- ガスキッチン
- シャワー
- エアコン
- 室内洗濯置場
- バス・トイレ別室
- 温水洗浄便座
- TVモニターホン
- 収納スペース
- インターネット対応
- 洗面所独立
- W・INクローゼット
- 駐輪場
- コンロ2口以上
- バイク置場
- 日当たり良好
- 閑静な住宅街
- ペット相談
- 2人入居可
- 保証人不要
- 高齢者相談
- 保 険
- 加入要 18,000円/2年
- 保証会社
- 利用必須 初回保証料 総賃料の50%
- 金銭備考
- 鍵交換代: 13,200円
- 町会費: 500円
- 初期費用の分割可能!クレジットカード決済可(分割最大24回払いOK)ペット飼育時賃料3,000円UP or 敷金1ヶ月UP
- 周辺施設
- 龍野小学校/1505m (徒歩19分)
- 龍野西中学校/185m (徒歩3分)
- マックスバリュー/300m (徒歩4分)
- 大学など
- -
表示の情報と現況に差異がある場合は現況優先となります。



































