太子町広坂戸建
物件番号/1056244185
- 賃 料
- 55,000円
- 共益費
- 0円
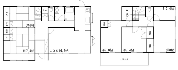
- 間取り
- 5SLDK
- 専有面積
- 150.22㎡
- 築年月
- 平成元年4月 (築37年)
- 敷 金
- 1ヶ月
- 礼 金
- 1ヶ月
- 保証金
- -
- 解約引
- -
- 交 通
- JR姫新線 太市駅 徒歩31分
- 所在地
- 揖保郡太子町広坂
おすすめポイント
ペット飼育OKです!スーパー近くで買い物便利な立地です!
設備・周辺情報など
- 路線/駅
- JR姫新線 太市駅 徒歩31分
- 所在地
- 揖保郡太子町広坂
- 内 訳
- LDK16.6帖、洋室7.4帖、和室6帖、洋室7.8帖、洋室7.4帖、洋室8帖、S3.4帖
- 種 別
- 貸家
- 階数/階建
- 1階/2階建
- 向 き
- 南
- 構 造
- 木造
- 現 況
- 空室
- 入 居
- 即時
- 契約期間
- 2年
- 取引態様
- 一般媒介
- 駐車場
- 空有
- 設備/条件
- 上水道
- 下水道
- プロパンガス
- 電話
- 給湯
- フローリング
- システムキッチン
- バルコニー
- ガスキッチン
- シャワー
- 室内洗濯置場
- バス・トイレ別室
- TVモニターホン
- 収納スペース
- インターネット対応
- 洗面所独立
- 駐輪場
- 角部屋
- コンロ2口以上
- バイク置場
- 2人入居可
- 保証人不要
- 高齢者相談
- 保 険
- 加入要 18,000円/2年
- 保証会社
- 利用必須 初回保証料 月額賃料の50%
- 金銭備考
- 鍵交換代: 11,000円
- 町会費: 800円
- 初期費用の分割可能!クレジットカード決済可(分割最大24回払いOK)ペット飼育時賃料1ヶ月up
- 周辺施設
- 龍野小学校/1330m (徒歩17分)
- 龍野西中学校/466m (徒歩6分)
- スーパー/50m (徒歩1分)
- 大学など
- -
表示の情報と現況に差異がある場合は現況優先となります。
お問い合わせ·内覧予約は
同じ建物の他の空室
- 階
- 家賃/
共益費 - 敷金/
礼金 - 間取り/
専有面積

1階- 5.9万円
7.0万円 - -
- - 3LDK
60.42m²

2階- 4.6万円
0.5万円 - -
- - 3LDK
62.7m²







